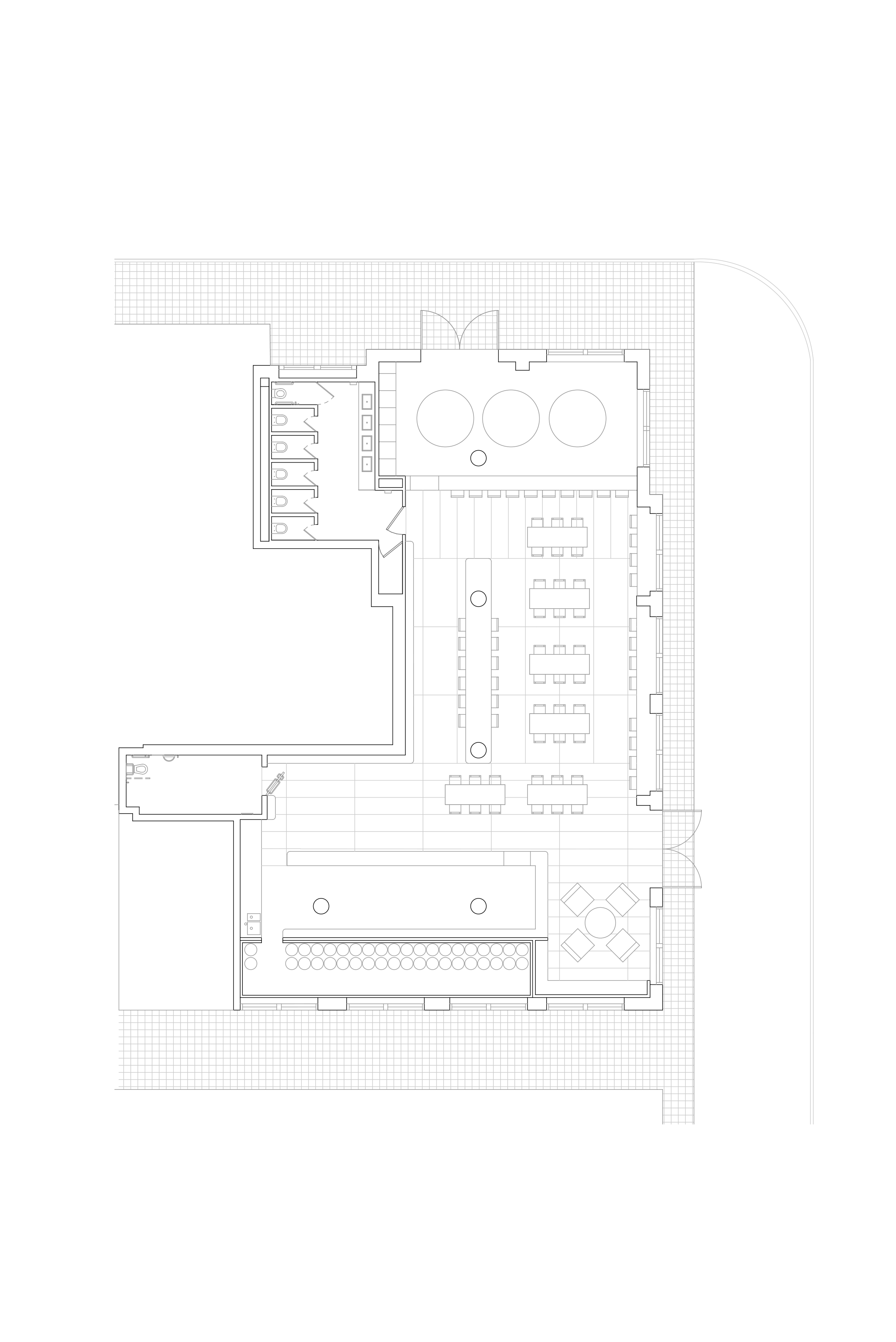
NORTH LONDON TAP ROOM

The clients brief was to adapt a new-build commercial unit - with tall ceilings and large expansive windows - into a new tap room with an in house brewery. Located near a busy train station, the client was keen for the taproom to have an inviting and distinctive identity with a variety of seating options to allow for evening drinks or daytime working. 

Key to organising the space was the insertion of the bar and brewery at opposite ends to provide a physical focus to the room as well as allowing maximum visual surveillance across the seating. High-level individual stools, low-level communal seating and separate event spaces provide flexibility and a variety of options to suite a range of customers. 

Within the concrete framed building with concrete block partitions, a new low level, painted timber lining - or ‘dish’ - provides a distinctive colour, warmth and texture. The dish also provides a contrasting scale to the tall ceilings and grounds the bar and brewery. Practically, it acts as a service void around the unit for the water supply and electrical feeds to be distributed. 

The lining is constructed from off-the-shelf materials of standard lengths that can be assembled quickly and cheaply. The use of standardised components also allows for future flexibility and for easy replacement if damaged. 

Previous
Previous

SAXONDALE SQUARE THEATRE, FROME

Next
Next

THE OLD COBBLERS, HAYLE